Heartland

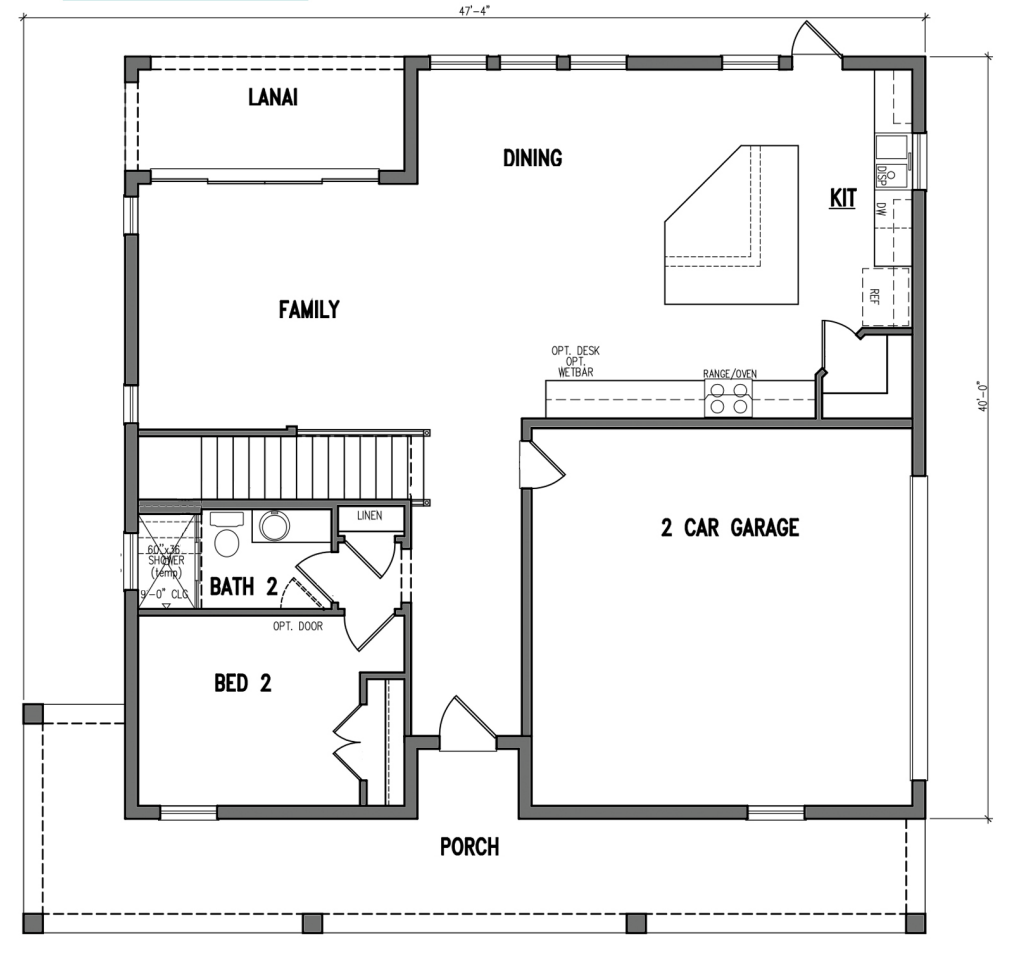
Discover the Heartland design by WinWay Homes, a spacious 2,333 square foot, two-story residence thoughtfully crafted for modern living. This home features a versatile layout, including a formal dining room, living room, and potential office space, all seamlessly connected. Upstairs, a flexible loft space awaits your personal touch, ideal for a home theater or play area. The heart of the home is a welcoming family room anchored by a chef’s dream kitchen with granite countertops and state-of-the-art appliances. Natural light floods every part of the Heartland design, creating a warm and inviting atmosphere throughout. But that’s not all, step outside to a private lanai, perfect for outdoor entertaining, and a spacious backyard ready for your custom pool and landscaping vision. With high ceilings, solid core doors, and luxurious master suites, the Heartland design is a blank canvas ready for your personal touch.

