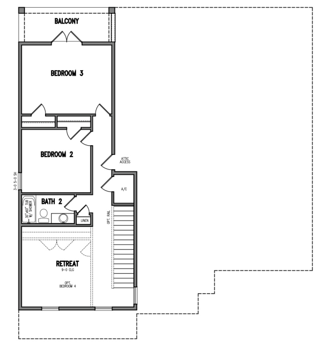
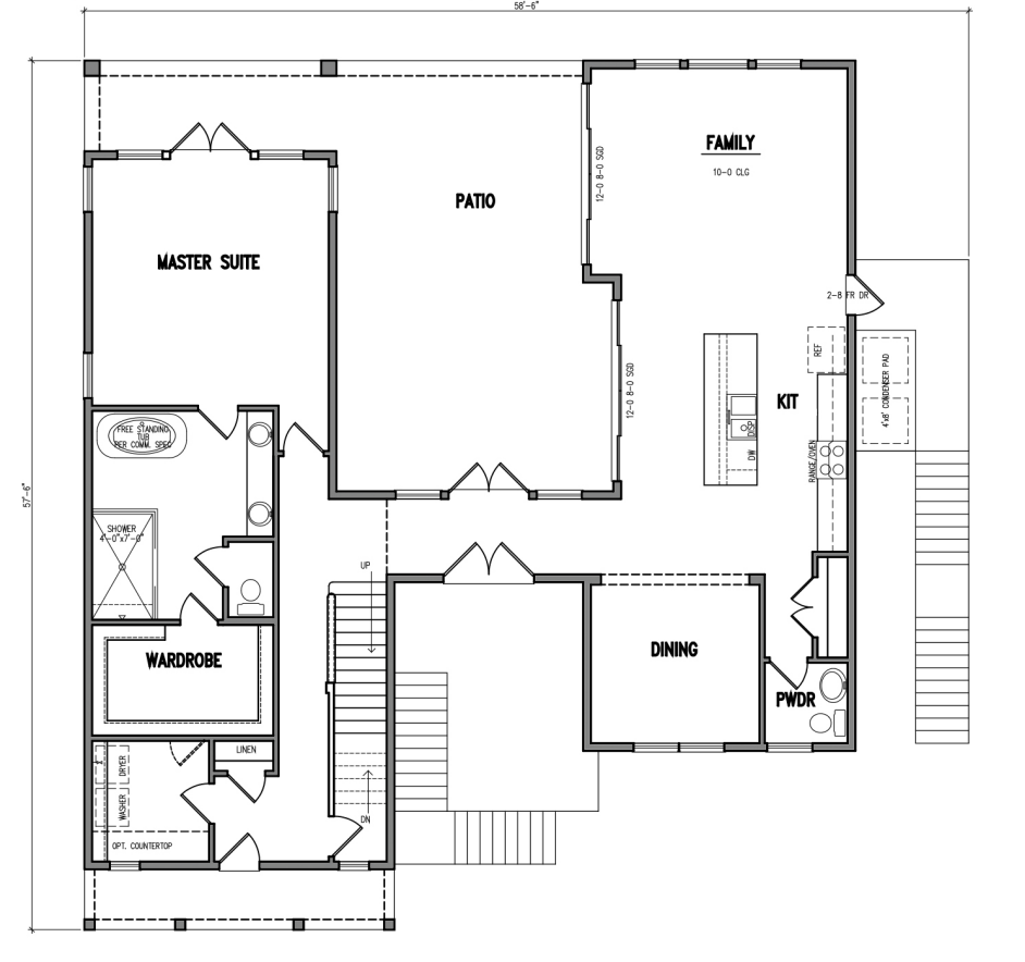
Saint John II

WinWay Homes proudly presents the Saint John II, a timeless three-story classic beauty offering three spacious bedrooms, two and a half luxurious baths, and a three-car garage. This residence is fully customizable, allowing you to infuse your unique style into every corner. Embrace the charm of traditional design as you create your dream kitchen, design the perfect master suite, and tailor the living spaces to your taste. With the versatility of three stories, Saint John II provides endless opportunities for comfortable living and customization. Welcome to a world where classic elegance meets your vision for the perfect WinWay Home.


