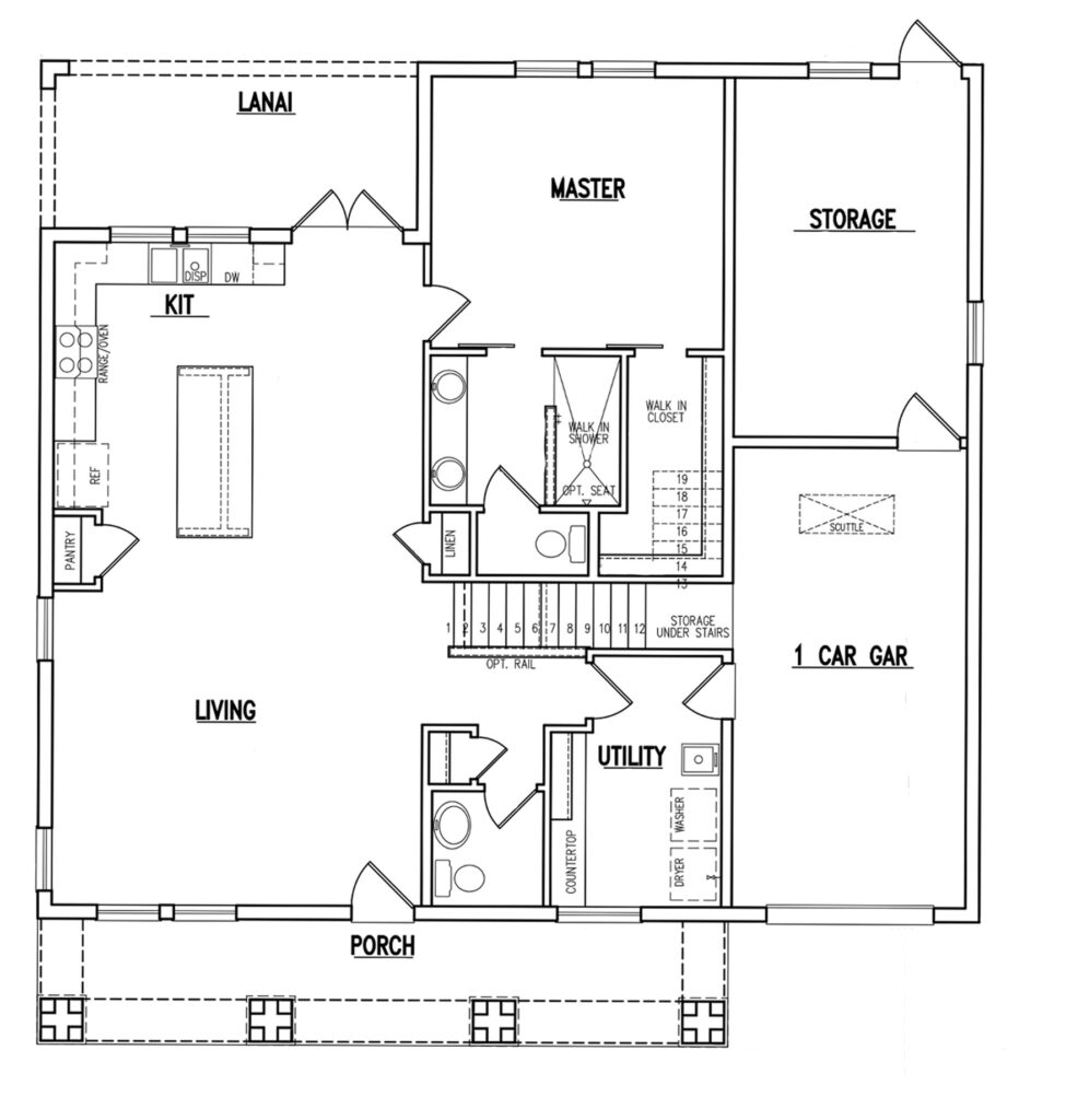
San Marino

The San Marino is a luxurious, 1,882 sq. ft. home designed to bring custom living to smaller lots. This completely customizable floor plan is a sure pick for those who desire high-end features without a sprawling footprint. With a meticulously planned layout that maximizes every inch of space, it allows for a seamless, spacious feel. It’s the perfect solution for homeowners who already have a lot and want to build a small, custom home that doesn’t compromise on quality or design.

San Marino is available in the following locations:
There are no currently-available quick move-in homes that use this floorplan.
