Marbella

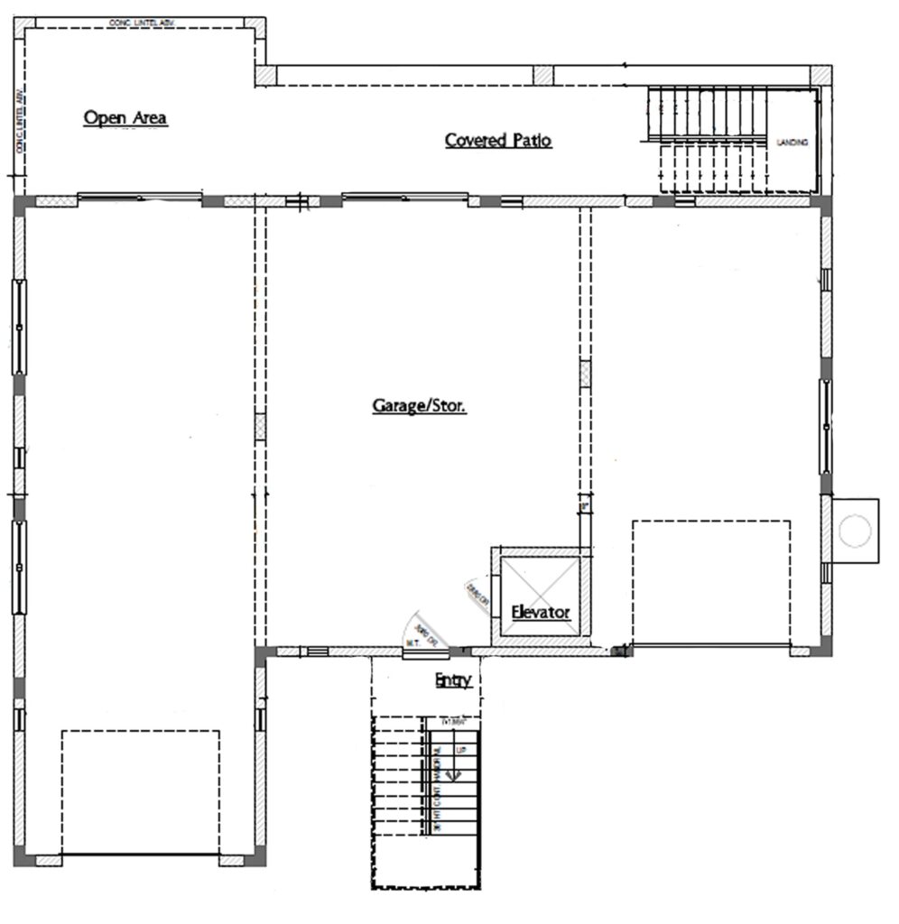
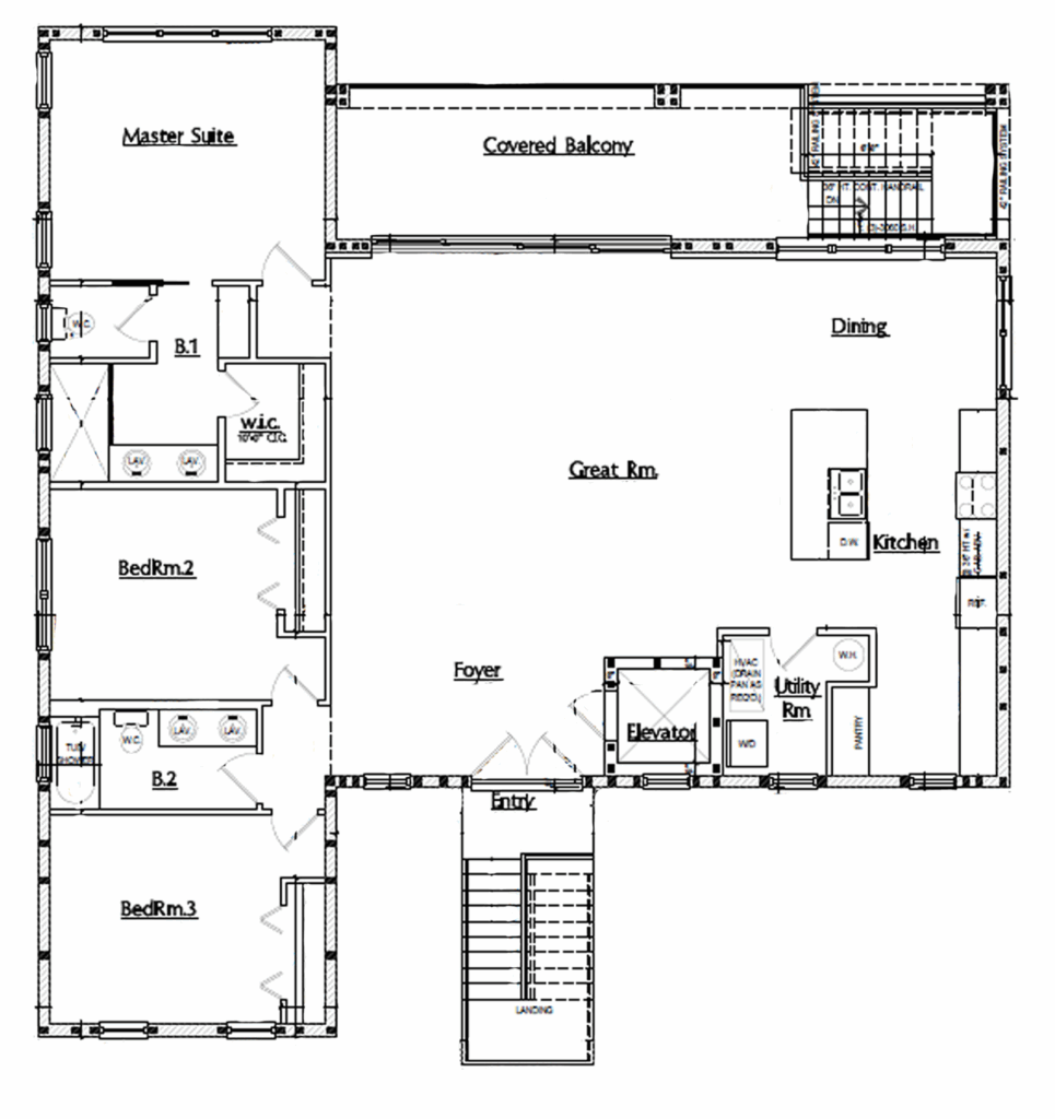
The Marbella plan represents a sophisticated fusion of Mediterranean-inspired aesthetics and modern coastal functionality. This elevated design offers practical advantages without compromising curb appeal, featuring a spacious three-bedroom, two-bathroom layout perched above a generous two-car garage. Transitioning from the ground level is made effortless by a private elevator that opens into a magnificent, open-concept floorplan. By eliminating traditional barriers, the living, dining, and kitchen spaces flow together in one continuous, airy expanse. This grand central hub leads naturally toward the rear of the home, where the primary suite serves as a secluded sanctuary perfectly positioned to capture serene waterfront views. Every inch of this residence is meticulously crafted for high-end hosting and effortless daily luxury, making it the definitive choice for modern coastal living.

